《建筑结构检测技术标准》GB/T 50344-2019
附录P 钢-混凝土组合结构中钢构件的无损探测方法 / P.4 H形钢构件主控尺寸的测定
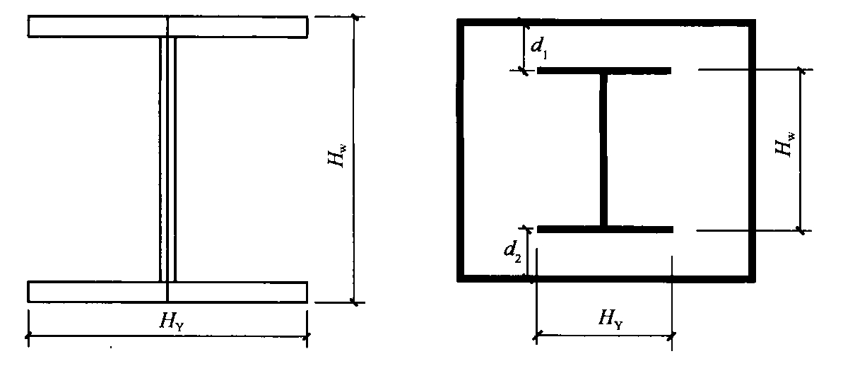
P.4.1 H形钢构件的主控尺寸宜采用雷达探测,探测的尺寸可包括翼板保护层厚度d1和d2、翼板的宽度HY,以及构件的高度Hw(图P.4.1)。

P.4.2 用雷达探测两个翼板的保护层厚度和H形钢构件翼板宽度的操作应符合下列规定:
1 探测面应为初步判定为型钢翼板的两个正面;
2 在探测中宜拾取雷达图像中翼板的反射波同相轴;
3 反射波同相轴宽度的头端和尾端两个异常值之间的距离可判为翼板宽度值HY;
4 反射波同相轴与雷达图像零点的距离可判为翼板保护层厚度。
P.4.3 混凝土中H形钢构件的高度可通过下式计算预估:

H——型钢混凝土柱的外观宽度;
d1——翼板1的保护层厚度;
d2——翼板2的保护层厚度。
P.4.4 用雷达探测H形钢构件腹板高度的操作应宜符合下列规定:
1 雷达仪的测试面应为初步判定为H形钢构件腹板高度的两个相对的面;
2 探测时宜拾取腹板反射波同相轴异常的头端、尾端间的距离;
3 腹板反射波同相轴异常的头端、尾端间的距离可判为构件高度值Hw。