《钢结构工程施工质量验收标准》GB 50205-2020
10 单层、多高层钢结构安装工程 / 10.4 钢屋(托)架、钢梁(桁架)安装
10.4.1 钢屋(托)架、钢梁(桁架)的几何尺寸偏差和变形应满足设计要求并符合本标准的规定。运输、堆放和吊装等造成的钢构件变形及涂层脱落,应进行矫正和修补。
检查数量:按钢梁数抽查10%,且不应少于3个。
检验方法:用拉线、钢尺现场实测或观察。
10.4.2 钢屋(托)架、钢桁架、钢梁、次梁的垂直度和侧向弯曲矢高的允许偏差应符合表10.4.2的规定。
检查数量:按同类构件数抽查10%,且不应少于3个。
检验方法:用吊线、拉线、经纬仪和钢尺现场实测。
表10.4.2 钢屋(托)架、钢桁架、梁垂直度和侧向弯曲矢高的允许偏差(mm)

10.4.3 当钢桁架(或梁)安装在混凝土柱上时,其支座中心对定位轴线的偏差不应大于10mm;当采用大型混凝土屋面板时,钢桁架(或梁)间距的偏差不应大于10mm。
检查数量:按同类构件数抽查10%,且不应少于3榀。
检验方法:用拉线和钢尺现场实测。
10.4.4 钢吊车梁或直接承受动力荷载的类似构件,其安装的允许偏差应符合表10.4.4的规定。
检查数量:按钢吊车梁数抽查10%,且不应少于3榀。
检验方法:应符合表10.4.4的规定。
表10.4.4 钢吊车梁安装的允许偏差(mm)


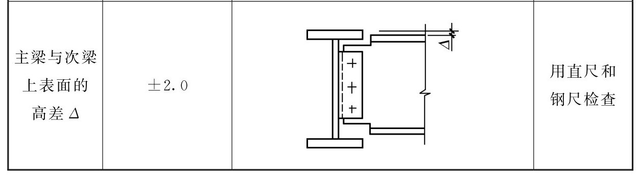
10.4.5 钢梁安装的允许偏差应符合表10.4.5的规定。
检查数量:按钢梁数抽查10%,且不应少于3个。
检验方法:应符合表10.4.5的规定。
表10.4.5 钢梁安装的允许偏差(mm)

